Contactez-nous

Appartement à vendre à Lilleréf. VA20875-GF

249 000 € FAI

Bel appartement T3 en duplex

Lille, Gambetta bel appartement T3 en duplex

Idéalement situé dans une petite copropriété, à proximité du Théâtre Sébastopol,
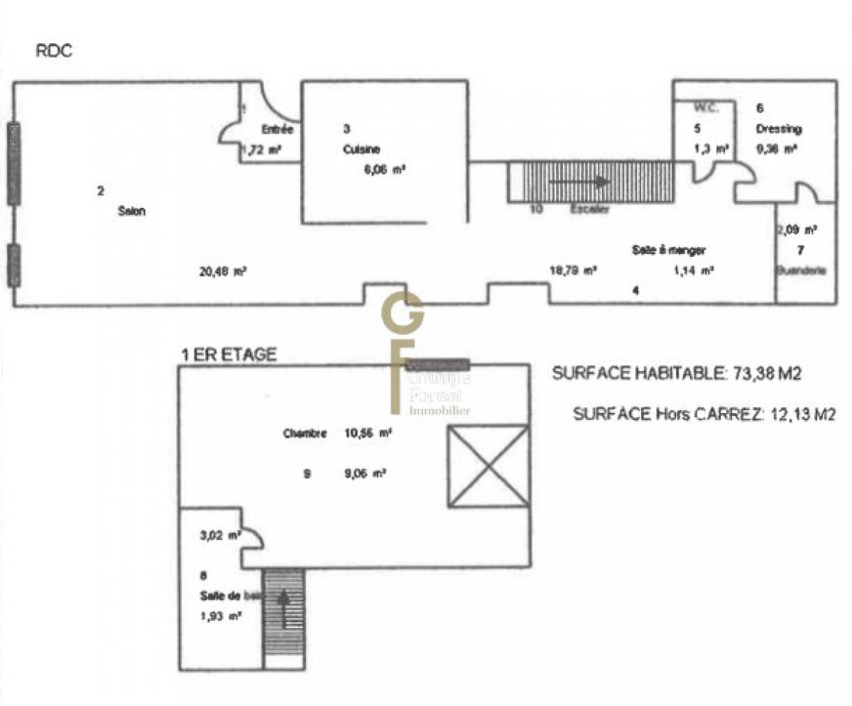
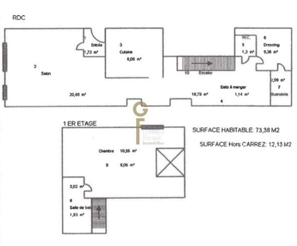
Découvrez ce charmant appartement en rez-de-chaussé de 73m² se composant :
D'une entrée avec vestiaire, d'un large séjour parqueté, d'une cuisine entièrement équipée et ouverte sur la salle à manger distribuant une première chambre ainsi que des w.c indépendant.
Au premier étage, en mezzanine découvrez une grande chambre lumineuse avec salle de bain.
Rénovations récentes : Toiture, peintures, sol...

A visiter sans tarder !



Honoraires inclus de 3.75% à la charge de l'acquéreur. Prix hors honoraires 240 000 €. Dans une copropriété de 6 lots. Aucune procédure n'est en cours. Classe énergie D, Classe climat B. Montant moyen estimé des dépenses annuelles d'énergie pour un usage standard, établi à partir des prix de l'énergie de l'année 2016 : 1000.00 €. Date de réalisation du DPE : 07-04-2017. Les informations sur les risques auxquels ce bien est exposé sont disponibles sur le site Géorisques : georisques.gouv.fr. Ce bien vous est proposé par un agent commercial (Entreprise individuelle).

Votre conseiller Croix Immobilier : Romain Vion
Agent commercial (Entreprise individuelle)

  • surface habitable

    73.38m2 hab.

  • chambres

    2 chambre(s)

  • salles de bain

    1 salle(s) de bain

  • chauffage

    électrique

Détail du prix

Copropriété
Nombre de lots dans la copropriété : 6 lots
Montant des charges courantes annuelles : 2 400 €/an soit 200 €/mois


Honoraires à la charge de l'acquéreur : 3.61% TTC
Prix de vente hors honoraires : 240 000 €
Prix de vente honoraires inclus : 249 000€

Nos honoraires

Diagnostic performance énergétique

Consommation
énergétique

Indice d'émission de gaz
à effet de serre

En savoir +
< 50A
51 à  90B
91 à  150C
151 à  230D
231 à  330E
331 à  450F
> 450G
<= 5A
6 à  10B
11 à  20C
21 à  35D
36 à  55E
56 à  80F
> 80G

Contactez-nous

Ces biens pourraient vous intéresser...